Beschläge
Bohrschablonen
- Schmalrahmen Berlin- Türspion
D-Norm
- Rosettengarnitur BB
- Rosettengarnitur PZ
- Rosettengarnitur WC
- SB ASG Wohnungseingangstür LS_LS
- SB ES3 Wohnungseingangstür LS_LS
- SB Ramona
- SB Sicura ES3 Haustür LS_LS
- SB Sicura Haustür LS_LS
- SB Sicura Haustür LS_R
- SB Sicura Wohnungseingangstür LS_LS
- SB Sicura Wohnungseingangstür LS_R
- SB ASG Haustür LS_LS
- Rosettengarnitur PZ
- Rosettengarnitur WC
- SB ASG Wohnungseingangstür LS_LS
- SB ES3 Wohnungseingangstür LS_LS
- SB Ramona
- SB Sicura ES3 Haustür LS_LS
- SB Sicura Haustür LS_LS
- SB Sicura Haustür LS_R
- SB Sicura Wohnungseingangstür LS_LS
- SB Sicura Wohnungseingangstür LS_R
- SB ASG Haustür LS_LS
Ö-Norm
- Rosettengarnitur BB
- Rosettengarnitur PZ
- Rosettengarnitur WC
- SB ASG LS_LS
- SB Ramona
- SB Sicura ES3 Haustür LS_LS
- SB Sicura Haustür LS_R
- SB Sicura LS_LS
- Rosettengarnitur PZ
- Rosettengarnitur WC
- SB ASG LS_LS
- SB Ramona
- SB Sicura ES3 Haustür LS_LS
- SB Sicura Haustür LS_R
- SB Sicura LS_LS
Garantieerklärungen
- ABACO- Funktion
- Oberflächen
Glastüren
- 70200800 Pendeltürband
- 70200810 Pendeltürband
- 70200840 Pendeltürband
- Bandbezugslinie 2-teilige Glastürbänder
- Bandbezugslinie 3-teilige Glastürbänder
- Schlosstyp Sevilla Mini
- Schlosstypen Barcelona
- Schlosstypen Madrid Valencia Malaga und Palma
Montagesysteme
- Basic System
- Flat System
- MRM Comfort System
- Plano System
- Top Speed System
- Velox fix System
Reinigungsempfehlung
- Pulverbeschichtete Oberflächen
- Edelstahl Rostfrei
Schiebetürbeschläge
- Montage 70.21.0010 und 70.20.1500- Montage 70201530 Holz
- Montage 70201900 Glas
- Montage 70201910 Holz
- Montage 70201920 Glas
- Montage 70201930 Holz
- Schiebetürmuschel
- Stossgriffe
Graz Schiebetürbeschlag
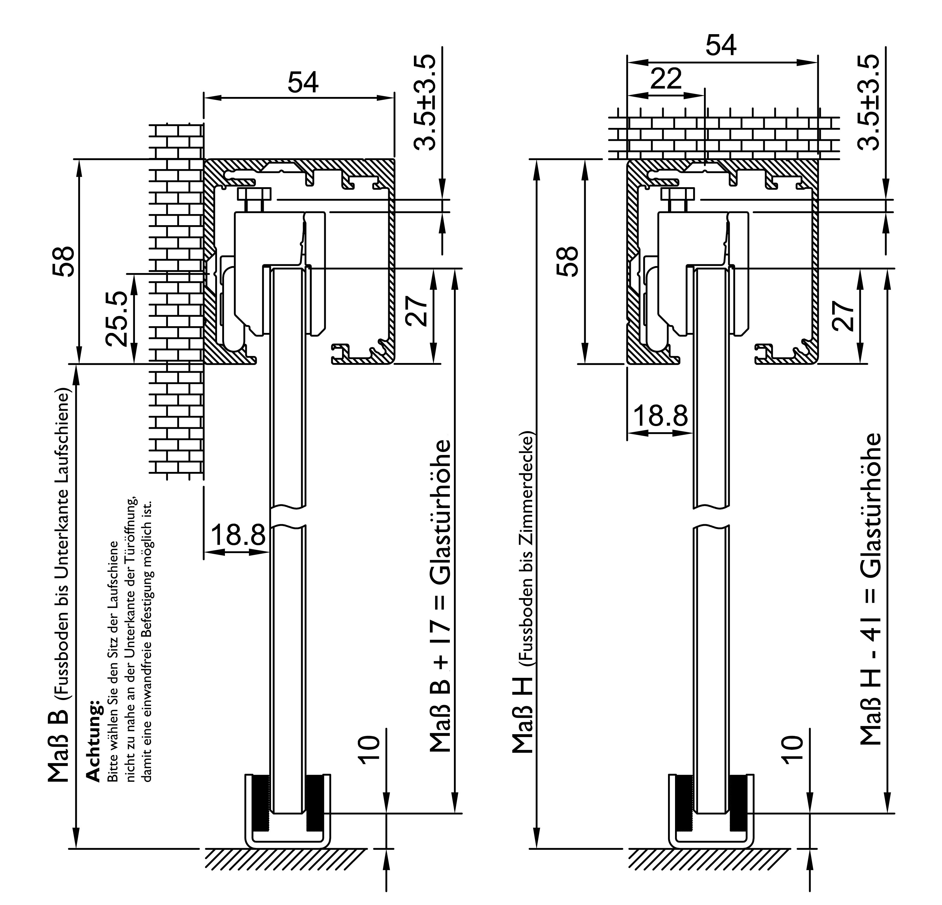
- Einbaumaße Glastür auto. Einzug
- Einbaumaße Glastür Fangstopper 2000 / 40000
- Glasbefestigung
- Holztür Fangstopper
- Holztür auto. Einzug
- Q. Glastür auto. Einzug
- Q. Holztür Fangstopper 2000 / 4000
- Q. Holztür auto. Einzug
- Q. Holztür Fangstopper
- Synchro Zubehör
- Wandabstandsprofil
- Zusatzprofil
- Einbaumaße Glastür Fangstopper 2000 / 40000
- Glasbefestigung
- Holztür Fangstopper
- Holztür auto. Einzug
- Q. Glastür auto. Einzug
- Q. Holztür Fangstopper 2000 / 4000
- Q. Holztür auto. Einzug
- Q. Holztür Fangstopper
- Synchro Zubehör
- Wandabstandsprofil
- Zusatzprofil